Приглашаем к сотрудничеству компании, занимающиеся строительством домов
Пн - Пт: 08:00 - 20:00
+7 (969) 999-24-71

Бесплатная консультация

Наш телефон
+7 (969) 999-24-71
Пн - Пт: 08:00 - 20:00
+7 (969) 999-24-71

Заказать звонок

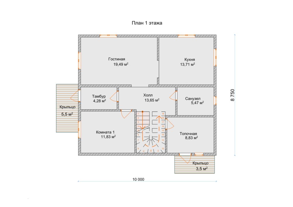
Проект дома ''ФГБ - 3830''

Выберите материал
Стоимость от
руб
Предложение не является публичной офертой. Стоимость является ориентировочной и приведена исключительно в информационных целях.
Характеристики
Площадь:
148.00 м2
Этажность:
Двухэтажный
Габариты:
8х10 м
Материал стен:
Газоблок
Описание проекта
Проект "ФГБ - 3830" - прекрасный двухэтажный дом для постоянного проживания из газоблоков. Площадь строения 148.00 м2 с размерами 10*8.

Компания Йошкар-Ола ТГВ-строй осуществляет качественное строительство дома "ФГБ - 3830". Обращаем ваше внимание, на то, что стоимость строительства напрямую зависит от комплектации и технологии строительства. Для предоставления подробной информации и консультирования, можно обратится по номеру: +7 (969) 999-24-71.
Получите готовый проект на почту
Оставьте заявку на получение проекта на почту
Цены на строительство домов
Материал Под ключ Коробка Теплый контур Черновая
ЛСТК 57 900 руб 30 000 руб 34 500 руб 38 700 руб
SIP-панели 57 900 руб 30 000 руб 34 500 руб 38 700 руб
Каркас 57 900 руб 30 000 руб 34 500 руб 38 700 руб
Пеноблок 85 000 руб 55 000 руб 59 700 руб 64 500 руб
Силикатный блок 85 000 руб 55 000 руб 59 700 руб 64 500 руб
Газоблок 85 000 руб 55 000 руб 59 700 руб 64 500 руб
Керамзитоблок 85 000 руб 55 000 руб 59 700 руб 64 500 руб
Арболитовый блок 85 000 руб 55 000 руб 59 700 руб 64 500 руб
Керамический блок 85 000 руб 55 000 руб 59 700 руб 64 500 руб
Кирпич 89 000 руб 59 000 руб 63 800 руб 68 000 руб
Рубленое бревно 86 000 руб 61 000 руб 64 800 руб 66 000 руб
Лафет 86 000 руб 61 000 руб 64 800 руб 66 000 руб
Клееный брус 86 000 руб 61 000 руб 64 800 руб 66 000 руб
Брус строганый 86 000 руб 61 000 руб 64 800 руб 66 000 руб
Брус 86 000 руб 61 000 руб 64 800 руб 66 000 руб
Двойной брус 86 000 руб 61 000 руб 64 800 руб 66 000 руб
Профилированный брус 86 000 руб 61 000 руб 64 800 руб 66 000 руб
Оцилиндрованное бревно 86 000 руб 61 000 руб 64 800 руб 66 000 руб
Доп.услуги
Наименование Цена. от
Дом из пеноблоков 320 руб
Дом из газоблоков 2000 руб
Дом из керамзитоблоков 320 руб
Дом из силикатных блоков 2000 руб
Дом из бруса 320 руб
Дом из силикатных блоков 2000 руб
Демонтаж вентиляционной решетки 320 руб
Демонтаж вентиляционной решетки 2000 руб
Демонтаж вентиляционной решетки 320 руб
Демонтаж вентиляционной решетки 320 руб
Другие проекты
Отделка whitebox – в подарок!
Отделка whitebox – в подарок!
Благоустройство земельного участка - в подарок!
Благоустройство земельного участка - в подарок!
Баня-бочка – в подарок!
Баня-бочка – в подарок!
Забор из профлиста – в подарок!
Забор из профлиста – в подарок!

Ипотека на строительство

Ипотека с нами - легко и доступно!
от 6%
Первонач. взнос от 10%
до 30 лет
Ипотека до
10 000 000 руб
Ипотечный калькулятор
Расчитайте стоймость ипотеки онлайн
Стоимость дома
Ставка по ипотеке
%
Срок
лет
Первоначальный взнос
Ваш платеж
от ₽/мес
Сумма ипотеки
Срок
лет
Ставка по ипотеке
%
Сделай 1 шаг к новому дому
Оставьте заявку и наши специалисты свяжутся с вами в ближайшее время
Поле обязательно для ввода
Поле обязательно для ввода
2Согласуем
Согласуем
Подберем проект для вас, внесем изменения под параметры вашего дома
3Подпишем
Подпишем
Обговариваем сроки работ и удобный для Вас способ оплаты, заключаем договор
4Доставим
Доставим
Бережно доставим и выгрузим материалы для строительства
5Построим
Построим
Проведем полный комплекс строительных и отделочных работ
6Сдадим
Сдадим
Вы принимаете нашу работу, подписываем акт сдачи-приемки дома, и вы заезжаете в дом своей мечты
Отделка whitebox – в подарок!
Отделка whitebox – в подарок!
Благоустройство земельного участка - в подарок!
Благоустройство земельного участка - в подарок!
Баня-бочка – в подарок!
Баня-бочка – в подарок!
Забор из профлиста – в подарок!
Забор из профлиста – в подарок!

Чтобы быть уверенным в качественном доме -
важно выбрать надежного подрядчика

01
Опыт и надёжность компании
  • Работаем на рынке более 10 лет, построено более 45 домов.
  • Реальные отзывы клиентов, портфолио выполненных работ.
02
Работаем без посредников
  • Свои бригады строителей, инженеров и проектировщиков.
  • Все работы выполняем своими силами, что снижает стоимость.
03
Бесплатный выезд специалиста на участок
  • Оценка грунта, подбор фундамента, преддоговорная консультация.
  • Подготовка рекомендаций по планировке и расположению дома.
04
Прозрачная смета и полное сопровождение
  • Подробный расчёт расходов до начала строительства.
  • Контроль качества на каждом этапе работ.

Дополнительные услуги для вашего проекта

Заборы из деревянного штакетника

Контакты

Адрес

Ленина, 38

Телефон

+7 (969) 999-24-71

График работы

Пн - Пт: 08:00 - 20:00

Средняя оценка построенного дома - 9.3 на основании 5 отзывов и 5 оценок
Рассчитать стоимость дома
Рассчитать стоимость ипотеки
Задать вопрос
Спецпредложения

Каталог проектов 2026

Скачайте бесплатные готовые проекты в нашем каталоге

Забрать проекты домов в:

Мы используем файлы cookies. Оставаясь на сайте, вы даете согласие на их использование